20.09.2025
Ни один качественный ремонт не обходится без дизайн-проекта. Он дает четкое представление о том, как будет выглядеть дом или квартира после завершения всех работ. Отсутствие такого плана может привести к дополнительным тратам, а конечный результат разочарует. Чтобы этого не произошло, обращайтесь к специалистам компании interspace — мы знаем все о дизайне и ремонте квартир и домов в Крыму.
Что входит в разработку дизайн-проекта?
Это сложный и многоступенчатый процесс, в рабочую документацию входит несколько планов:
Обмерный. Он изготавливается на основе замеров помещения с привязкой к инженерным коммуникациям. Все данные вносятся в программу для последующего моделирования жилого пространства.

Демонтаж и перепланировка. Иногда перегородки, двери и прочие конструкции препятствуют преображению комнаты, в этом случае дизайнер отмечает элементы, подлежащие демонтажу. После этого дизайнер разрабатывает новый план помещения и указывает строительные материалы, необходимые для проведения ремонтно-строительных работ по возведению новых перегородок.

Экспликация. После монтажа новых стен и перегородок площадь квартиры или дома меняется, в дизайн-проекте указывают точные размеры и назначение каждого помещения.

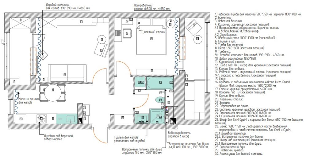
Расстановка мебели. Это важный этап дизайн-проекта интерьера, которым многие пренебрегают. Подбираются элементы обстановки в рамках определенной стилистики с оглядкой на количество жильцов и их ритм жизни.

Сантехника. На чертеже отмечают расположение сантехнических приборов с подводом горячей и холодной воды, а также канализационный слив. Делаются примечания для мастеров.

Теплые полы. Бывают электрические и водяные, от конечного выбора зависит перечень работ и материалов. Важно понимать, монтаж системы «теплый пол» возможен не везде.

Покрытие полов. Сегодня доступно множество вариантов: паркет, ламинат, керамогранит, инженерная доска и т. д. Необходимо продумать целесообразность и эстетику использования покрытий в разных типах помещения с учетом их нагрузки.

Электрика. Схема разрабатывается профильным специалистом. Он рассчитает количество розеток и выключателей, а также обозначит их расположение, принимая во внимание расстановку мебели. Дизайн-проект уютного дома строится на принципах эстетики и практичности — тогда электрооборудование незаметно и безопасно.

Освещение. Определяется количество и тип осветительных приборов, а также места их размещения. Освещение многие недооценивают, а благодаря его можно создать красивые акценты ремонта дома.

В итоге заказчик получает подробный план ремонта, а также смету с необходимыми строительными материалами.
5 причин заказать дизайн-проект в компании interspace
Не боимся сложных задач. Наши специалисты способны преобразить как элитную новостройку, так и вторичное жилье.
Стремимся к совершенству. Мы меняемся вслед за новыми архитектурными и интерьерными трендами.
Учитываем пожелания заказчиков. Знаем, как сделать так, чтобы в одном пространстве было комфортно людям разных поколений и взглядов.
Делаем дизайн-проекты без отрыва от реальности. Никогда не жертвуем эстетикой в угоду рациональности и наоборот.
Устанавливаем прозрачное ценообразование. Клиент понимает, какие услуги он оплачивает.
Делаем ремонт квартир и разрабатываем дизайн проекты во всех городах Крыма: Севастополь, Симферополь, ремонт квартир Ялта
Сантехника. На чертеже отмечают расположение сантехнических приборов с подводом горячей и холодной воды, а также канализационный слив. Делаются примечания для мастеров.
Контакты:
Сотрудничество:
Адрес:
г. Севастополь, ул. Хрусталева 146
правое крыло 2 этаж
ООО ИНТЕРСПЕЙС
ОГРН 1269200000013
Все авторские права, включая смежные авторские,
сохраняются за правообладателями
2026. Быстрый выезд на замеры в Севастополе, работаем по всему Крыму — от Ялты до Симферополя.