27.09.2025
Обмерный план — это неотъемлемая часть дизайн-проекта, залог успешного ремонта квартиры и гармоничного интерьера. В этой статье мы расскажем, почему этот план необходим и какие выгоды вы получите от сотрудничества с нами.
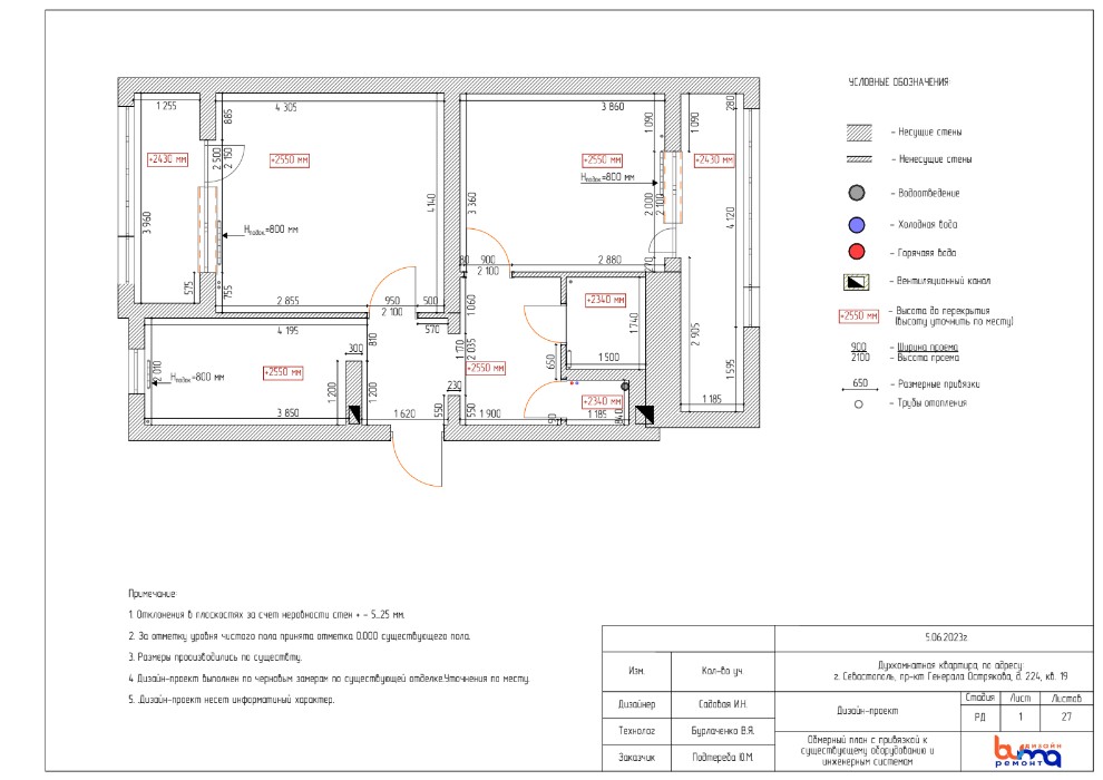
На самом деле обмерный план- это подробная схема, позволяющая понять особенности жилища. Она содержит сведения и замеры о стенах, перегородках, окнах, дверях, нишах, коммуникациях и т. д. Обмерный план служит основой для составления других чертежей, которые понадобятся для ремонта дома или квартиры.
Имея на руках такой документ, легко рассчитать необходимое количество материалов, избежать ошибок при проектировании, подобрать мебель и сантехнику (в случае, если не планируется перепланировка).

Чем обмерный план отличается от плана БТИ
Многие ошибочно полагают, что можно воспользоваться планом БТИ, ведь в нем тоже указана планировка и размеры помещения. Однако план БТИ отображает общую информацию об основных характеристиках объекта. Указанные в техпаспорте параметры, подходят для юридического использования, но не годятся для проведения ремонтно-строительных работ. С очень высокой вероятностью они просто напросто расходятся в своих размерах.
По сравнению с планом БТИ, обмерный план детализирован и учитывает все архитектурные элементы.
Что входит в обмерный план
Длина и ширина стен.
Высота потолка, дверных и оконных проемов, а также подоконников.
Расположение несущих стен и колонн.
Замеры всех архитектурных элементов, например, выступы и ниши.
Разметка коммуникаций и выходов под них (канализация, электрика, водопровод и т. д.).
Фотографии объекта.
К кому обратиться
Компания interspace оказывает услуги по изготовлению обмерных планов помещений, квартир и домов. У нас работают профессионалы, обладающие богатым опытом. В их распоряжении все необходимые инструменты для проведения точных замеров.
5 причин сотрудничать с компанией interspace
Экономия. Наши сотрудники произведут точные замеры и расчеты, вам не придется покупать лишние строительные и отделочные материалы.
Гарантии. Вы будете точно знать, где расположено инженерное оборудование и системы, сможете спланировать интерьер и освещение, избежав ошибок и переделок.
Опыт. Дизайн- проект по всему Крыму с выездом дизайнера на объект- это не проблема.
Качественное оборудование. Специалисты interspace используют высокоточные лазерные приборы, которые проходят ежегодный метрологический контроль.
Скорость. Наш сотрудник оперативно приедет на объект после согласования заявки.
Делаем ремонт квартир и разрабатываем дизайн проекты во всех городах Крыма: Севастополь, Симферополь, ремонт квартир Ялта
Контакты:
Сотрудничество:
Адрес:
г. Севастополь, ул. Хрусталева 146
правое крыло 2 этаж
ООО ИНТЕРСПЕЙС
ОГРН 1269200000013
Все авторские права, включая смежные авторские,
сохраняются за правообладателями
2026. Быстрый выезд на замеры в Севастополе, работаем по всему Крыму — от Ялты до Симферополя.