11.10.2025
Перепланировкой считается изменение первоначальной планировки жилых помещений без потери прочности несущих конструкций и ухудшения внешнего вида помещения.
Самодеятельность при выполнении капитального или косметического ремонта может повлечь за собой нарушение строительных, санитарных или противопожарных норм, поэтому проект-план перепланировки просто необходим.
Предприимчивые «дельцы», рисующие план перепланировки «на колене», обычно попадают в собственную ловушку, т.к. изменение планировочных решений должно иметь под собой законодательную и профессиональную базу.
Работы по перепланировке делятся на 2 основных вида:
Не требующие согласований. К ним относятся замена окон и дверей, сантехники, установка душа вместо ванны и др.
Требующие определенных разрешений в государственных структурах:
перемещение или устранение межкомнатных перегородок;
расширение существующих или возведение новых проемов;
перемещение или замена газового, отопительного оборудования.
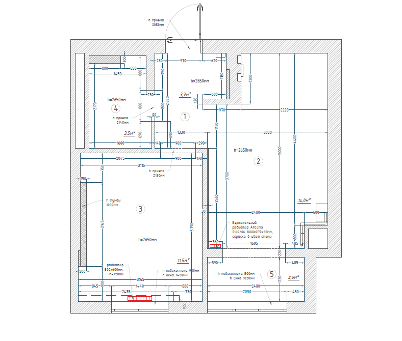
План перепланировки – 4-ый этап создания дизайн-проекта, следующий за обмерным планом, планом демонтажных и монтажных работ, где уже обозначены и новые перегородки, и материалы, из которых они будут выполнены (для удобства работы мастеров).
План перепланировки показывает, как будет выглядеть квартира или дом после всех изменений, и далее на нем будет разрабатываться план расстановки мебели.

В целом дизайн-проект необходим не только для визуализации будущего интерьера, но и для предупреждения сложностей, которые могут возникнуть в ходе ремонта.
План перепланировки помещения от interspace это:
Концептуально. Все решения объединены единым замыслом.
Функционально. У нас масса вариантов, как визуально увеличить объем небольшого помещения, или рационально зонировать большое помещение. Мы даже можем сделать из однушки двушку.
Креативно. Все новые идеи к вашим услугам.
Стильно. Наши специалисты мониторят новинки материалов и технологий в области ремонта, предлагают заказчикам актуальные решения.
Выгодно. Мы предлагаем адекватные цены, соблюдаем сроки.
Все изменения, которые будут выполнены в ходе перепланировки, мы вносим в технический план помещения.
Работаем с любыми жилыми помещениями: квартирами, домами, коттеджами любой этажности.
Наша цель – создать уникальный интерьер именно для вас
Делаем ремонт квартир и разрабатываем дизайн проекты во всех городах Крыма: Севастополь, Симферополь, ремонт квартир Ялта
Контакты:
Сотрудничество:
Адрес:
г. Севастополь, ул. Хрусталева 146
правое крыло 2 этаж
ООО ИНТЕРСПЕЙС
ОГРН 1269200000013
Все авторские права, включая смежные авторские,
сохраняются за правообладателями
2026. Быстрый выезд на замеры в Севастополе, работаем по всему Крыму — от Ялты до Симферополя.