Проект интерьера и ремонт под ключ: смета и сроки по договору, гарантия 7 лет. Фото/видео‑контроль и еженедельные отчёты — удобно для удалённого управления по Крыму и РФ.
Рассчитаем стоимость дизайн-проекта в 3-х ценовых вариантах
и расскажем как сэкономить до 30% на ремонте
Cоздание дизайн-проекта
и ремонтно-отделочные работы

Проектирование
и строительство домов

Ландшафтный дизайн
и благоустройство

Индивидуальное
изготовление мебели

Авторский надзор
и комплектация

Цена за м² зависит от площади, сложности и необходимости 3D. Стоимость разработки уточняем после обмеров и ТЗ — фиксируем по договору.
Предварительный расчёт стоимости без визита. Смета за 24 часа. Без спам‑звонков — только по делу, в удобное время.
Севастополь и весь Крым (Ялта, Симферополь). Ведём проекты по РФ удалённо: еженедельные фото/видео‑отчёты и чат с прорабом.
Для тех, у кого есть строители и важна скорость: без 3D, но полный комплект планов и рабочих чертежей для точной реализации.
Выезд на объект и сбор пожеланий заказчика
Фотофиксация текущего состояния помещения
Обмеры с указанием всех важных элементов (окна, двери, коммуникации).
Смотреть весь список работ
Разработка 3 вариантов планировки с мебелью и выбор лучшего (до 3 правок).
План перепланировки и демонтажных работ.
План монтажа новых конструкций и перегородок.
Размещение сантехники, освещения и электрики (розетки, выключатели, кабели).
Развёртки стен с плиткой в ванной и кухне.
План потолков, стен и полов с указанием материалов.
План тёплых полов и кондиционирования (если есть).
План дверей с типом открывания.
Для тех, у кого есть строители и важна скорость: без 3D, но полный комплект планов и рабочих чертежей для точной реализации + коллажи каждой комнаты.
Выезд на объект и сбор пожеланий заказчика
Фотофиксация текущего состояния помещения
Обмеры с указанием всех важных элементов (окна, двери, коммуникации).
Смотреть весь список работ
Разработка 3 вариантов планировки с мебелью и выбор лучшего (до 3 правок).
План перепланировки и демонтажных работ.
План монтажа новых конструкций и перегородок.
Размещение сантехники, освещения и электрики (розетки, выключатели, кабели).
Развёртки стен с плиткой в ванной и кухне.
План потолков, стен и полов с указанием материалов.
План тёплых полов и кондиционирования (если есть).
План дверей с типом открывания.
Коллажи
Хит‑пакет: 3D‑визуализации соответствуют реализации при согласованных материалах. Онлайн‑согласования, ведомости с артикулами — закупаем без лишнего.
Выезд на объект и сбор пожеланий заказчика
Фотофиксация текущего состояния помещения
Обмеры с указанием всех важных элементов (окна, двери, коммуникации).
Смотреть весь список работ
Разработка 3 вариантов планировки с мебелью и выбор лучшего (до 3 правок).
План перепланировки и демонтажных работ.
План монтажа новых конструкций и перегородок.
Размещение сантехники, освещения и электрики (розетки, выключатели, кабели).
Развёртки стен с плиткой в ванной и кухне.
План потолков, стен и полов с указанием материалов.
План тёплых полов и кондиционирования (если есть).
План дверей с типом открывания.
Коллажи
3D визуализация утверждённого планировочного решения
Подбор чистовых материалов
Хит‑пакет: 3D‑визуализации соответствуют реализации при согласованных материалах. Онлайн‑согласования, ведомости с артикулами — закупаем без лишнего.
Выезд на объект и сбор пожеланий заказчика
Фотофиксация текущего состояния помещения
Обмеры с указанием всех важных элементов (окна, двери, коммуникации).
Смотреть весь список работ
Разработка 3 вариантов планировки с мебелью и выбор лучшего (до 3 правок).
План перепланировки и демонтажных работ.
План монтажа новых конструкций и перегородок.
Размещение сантехники, освещения и электрики (розетки, выключатели, кабели).
Развёртки стен с плиткой в ванной и кухне.
План потолков, стен и полов с указанием материалов.
План тёплых полов и кондиционирования (если есть).
План дверей с типом открывания.
Коллажи
3D визуализация утверждённого планировочного решения
Подбор чистовых материалов
Подбор готовой мебели
Выезды в салоны и магазины
Комплектация объекта
Авторский надзор
*Обращаем Ваше внимание, выше представлены ориентировочные цены. Стоимость разработки дизайн-проекта рассчитывается индивидуально в зависимости от объемов, территориальной привязки объекта, состава работ и финальных потребностей.
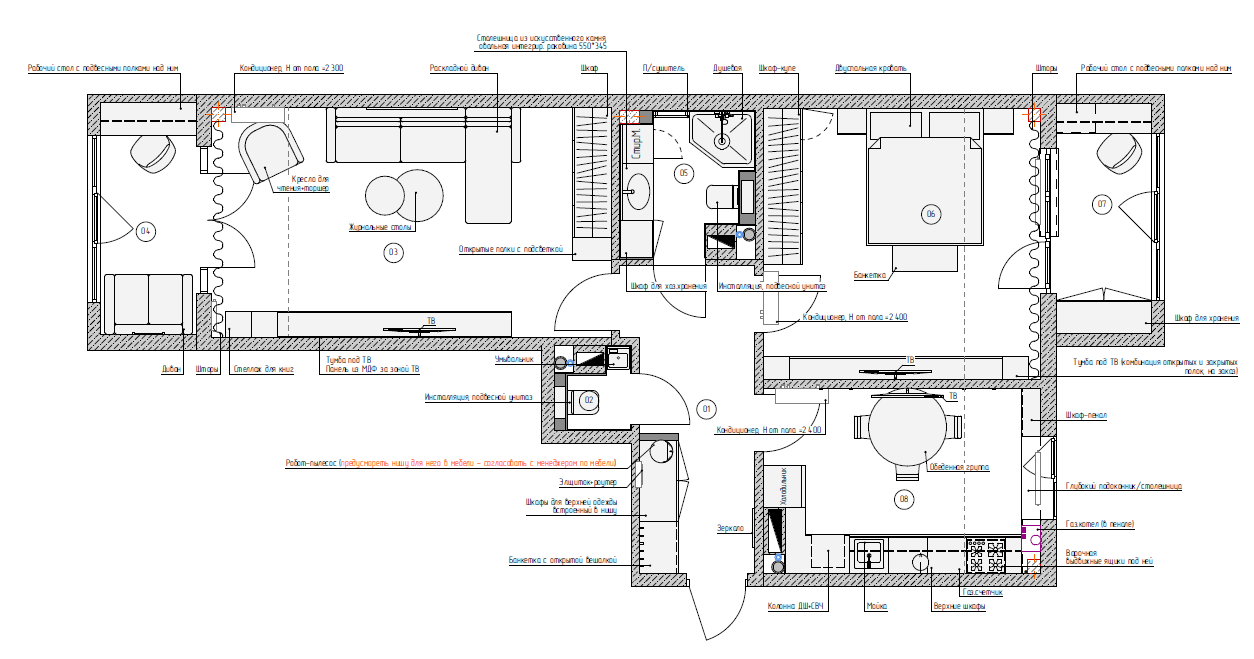
Обмерный план
Обмерный план с фотофиксацией — база точной сметы и правильных решений по планировке.
Планировочные решения
2–3 варианта зонирования, проверяем эргономику и дорабатываем выбранный вариант до идеала.
3D‑визуализация
Фотореалистичные рендеры: материалы, свет и мебель — видите результат до старта ремонта.
Рабочие чертежи
Полный комплект рабочих чертежей для строителей — без догадок, переделок и простоев.
Ведомости и спецификации
Ведомости: артикулы и объёмы материалов, мебели и света — бюджет под контролем.
Комплектация
Подбор, закупка и поставка по графику — меньше рисков, простоев и срывов отделки.
задачи, референсы, ориентиры по бюджету и срокам. Фиксируем бриф и переходим к планировкам.
проверка функционала на бытовых сценариях, согласование финального варианта с учётом правок.
правки по цветам и материалам. Решения фиксируем протоколом согласований для точной реализации
ведомости материалов и спецификации для закупки и поставок без переплат и простоев.
комплектация, еженедельные отчёты. Сдаём объект актом — «под ключ», с гарантией 7 лет.
Основатель студии интерьера "Интерспейс"
Мы специализируемся на дизайнерском ремонте квартир и домов в Севастополе с 2017 года. Основное направление нашей работы — это ремонты “Под Ключ” с разработкой индивидуального дизайн-проекта и его полной реализацией.
Наша цель — не просто качественно выполнить ремонт, а создать продуманное, стильное и комфортное пространство, отражающее ваш образ жизни и вкус.
Мы уверены — хороший ремонт начинается с грамотного дизайна. А реализованный дизайн превращает жильё в пространство, куда хочется возвращаться.

Поэтому предоставляем Вам возможность
увидеть реализованные нами проекты вживую!

Работаем в данной сфере более 7 лет. Гарантируем качество выполненных работ.

- Прилагается смета
- Прописаны сроки
- Кассовые чеки за работы.

В течение всего ремонта
прораб не сменится. За
Ваш ремонт будет отвечать одно лицо.

Поможем вам значительно
сэкономить время, взяв
на себя закупку материалов и их доставку.

Полностью отчитаемся за все материалы, предоставим все документы (чеки,
накладные).

Система оплаты в рассрочку, исходя их пожеланий Заказчика. Поэтому график платежей будет удобным.
Квартира свободной планировки г. Мелитополь
Площадь объекта — 68 кв.м.
Дизайн в современном стиле
Выражаю свою благодарность команде ИНТЕРСПЕЙС за качественный ремонт в нашей квартире. Результатом довольны на 100%. Ребята - мастера своего дела. Сделали все красиво, аккуратно, грамотно и в срок. По ремонту всегда готовы поделиться опытом, дать совет, помочь найти альтернативное решение.
Всем рекомендую!


Александр Ч
Хочу выразить свою благодарность Мастеру своего дела!
Очень переживала....Доверилась Фирме и не пожалела! Очень благодарна бригаде работников Владислава за их общий неоценимый труд!
Ремонт 2-х комнатной полностью убитой «Брежневке» целиком делала бригада...
Подробнее


Лариса
Здравствуйте всем, кто стоит не перепутье выбора компании на ремонт и кому можно доверить свои деньги. Мы обладатели новостройки в ЖК ДОБРОГОРОД. Долго искали Компанию, которая бы давала гарантии на свои работы. Чтобы все работы проделанные ею, были указаны документально и подтверждены обеими сторонами. Я о...
Подробнее


Светлана
Обращались в компанию по поводу ремонта в новостройке с 0.Заказали дизайн проект и отдали ключи, а через несколько месяцев мы въехали в квартиру своей мечты. Благодарим всю команду за качественно и в срок выполненные работы, компетентность, индивидуальный подход и организацию всего процесса ремонта.
Владислав, Ирина и Платон ❤️


Ирина
Здравствуйте! Очень счастливы и благодарны Компании за отличный, современный, прекрасный и стильный ремонт "под ключ" в нашей новой двухкомнатной квартире-новостройке в новом ЖК. Я сама выбрала эту Профессиональную Компанию среди многочисленных компаний по ремонту в г. Севастополе по интернету, и не ошиблас...
Подробнее


Елена
Заказывал ремонт двухкомнатной квартиры для Мамы. Сам я находился в другом городе и вся работа по согласованию, приёмке работ была организована дистанционно, что-называется "На полном доверии". К моему удивлению (15 лет работаю в области строительства) это первая компания, к которой у меня не было ни одной
Подробнее


Сергей П.
Прошло более года, как компания ИНТЕРСПЕЙС по ремонту квартир выполнила обязательства по ремонту моей двухкомнатной квартиры по ул. Челнокова 17 корп.1. Нет никаких нареканий на качество работ. Все бытовые узлы функционируют исправно. Отделка выше всяческих похвал. При возникновении любых неисправностей в оборудо...
Подробнее


Александр М.
Выражаю огромную благодарность всей команде, и в первую очередь её руководителю Владиславу Яковлевичу и мастеру Виктору! Всегда приятно работать с людьми, по-настоящему увлечённым своей работой. Результатом ремонта под "ключ" своей студии доволен на все 100%. Однозначно рекомендую!


Илья
Заказывали ремонт 2-комн. квартиры: во время Ремонта жили своей обычной жизнью, будто ремонт прошёл мимо(ребята все сделали самостоятельно: ввели котёл в эксплуатацию, сделали пуск газа и решали все вопросы по взаимодействию со службами в т.ч. по закупке и доставке материалов). Даже помогли при покупке чист...
Подробнее


Данил М.
Ребята выполнили максимальный объем работ. От полного демонтажа всего, что было в квартире до состояния новой дизайнерской квартиры. Качеством работы доволен. Вопросы решались оперативно и без "головняка". Рекомендую!


Александр
Выполнить дизайнерский проект задача непростая. Но коллектив справился достойно. Вовремя обговаривались детали, подготавливался материал, решались Вопросы реализации дизайнерских решений. Качество работ понравилось. Сроки и стоимость согласно договора. Результатами доволен. Благодарю коллектив и руководство и желаю успехов в дальнейшем.


Александр П.
Хотим сказать огромное спасибо всей команде за проделанную работу. Все виды работ были выполнены на высшем уровне. Также хочется отметить, что все вопросы и возникшие сложности решались оперативно и слаженно. У вас работают крутые мастера, особенно хочется отметить Виктора, и как говорят: "У него золотые ру...
Подробнее


Анатолий и Катерина
Делали капитальный ремонт 2- комнатной "бабушкиной" квартиры. Снесли все до основания и сделали заново: штукатурку, стяжку на полу, натяжные потолки, балкон. В нашем доме, построенном в 1970, были очень кривые стены и полы. Бригада Владислава все выровняла до идеального состояния. Стены сделали под покраску...
Подробнее


Наталья Винникова
Спасибо за профессионализм, качество и быстроту работы! Ребята под руководством опытного прораба выполняли работы по ремонту квартиры под ключ в старом доме. Ими было переделано почти все. Положили ламинат и плитку, сделали двухуровневый потолок из гипсокартона с натяжными потолками и очень красивой подсвет...
Подробнее


Светлана Куракевич
Моя благодарность ребятам, за то, что они в первую очередь: проконсультировали, предложили несколько решений в моем случае. Сроки и стоимость, оказались более чем приемлемыми!
Результатами очень доволен и надеюсь, что мы еще поработаем в перспективе!


Александр Максимец
По рекомендации знакомых обратилась в строительно-ремонтную компанию Buma для ремонта офисного помещения "под ключ". Составили смету, договор, все сроки соблюли. Цена после окончания работы не изменилась. Качество отличное. Осталась очень довольна работой бригады и особая благодарность прорабу -...
Подробнее


Анна Коваленко
Какие сроки разработки?
До 60 м² — 3–5 недель, 60–100 м² — 5–8, дом — 8–12. Дедлайны и этапы фиксируем в договоре.
Выделаете только ремонт или проект?
Делаем проект и ремонт «под ключ». Авторский надзор и комплектация доступны в пакетах.
Как происходит удалённая работа?
Согласования онлайн, еженедельные отчёты, выезд при необходимости. В рабочее время отвечаем до 2 часов.
Что если не понравится дизайн?
Работаем с референсами, даём 2–3 планировки, правки по 3D. Ключевые узлы фиксируем протоколом.
Как производится оплата?
Поэтапно, по актам и чекам. Скрытых платежей нет. Изменения сметы — только через допсоглашение.
Делаете подбор артикулов?
В пакетах «Полный» и «Под ключ» — да: перечни, ссылки, спецификации для закупки и контроля.
Остались вопросы? Наши консультанты на связи!
Мы обязательно ответим в течение дня

Контакты:
Сотрудничество:
Адрес:
г. Севастополь, ул. Хрусталева 146
правое крыло 2 этаж
ООО ИНТЕРСПЕЙС
ОГРН 1269200000013
Все авторские права, включая смежные авторские,
сохраняются за правообладателями
2026. Быстрый выезд на замеры в Севастополе, работаем по всему Крыму — от Ялты до Симферополя.